Sold

Displaying: of 10

Agent Details

Tamara and Mark Wecker

Share

ARGUABLY BRIGHTON'S BEST BUY WITHIN 350MTRS OF THE WATERFRONT!

Sold for $445,000

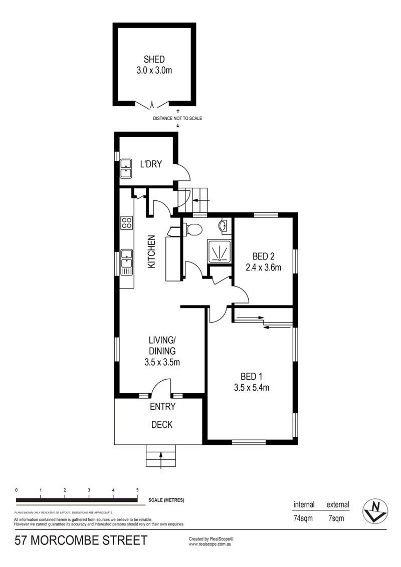
57 Morcombe Street, Brighton

2
1

Profile

(note: photos taken during prior tenancy & reflect condition and style of home only, current presentation may differ)

Perfectly positioned just 350 meters from the vibrant Bramble Bay waterfront, the scope for a property overhaul here is exciting...

Nestled in one of the area's most up and coming bayside locales, this property presents a unique opportunity for the savvy purchaser to acquire a level parcel of land, with unlimited potential for capital growth and endless options for renovation or rebuilding.

With the option to renovate or detonate (subject to council approvals), the residence is a modest yet charming post-war cottage with 2 bedrooms (main with built-in robe), 1 bathroom, modernised kitchen and timber floorboards.

The site itself is a blank canvass for your creative flair!

• level 405m2 rectangular shaped allotment
• 40mtr x 10mtr dimensions (approx.)
• 350mtrs to waterfront

Rent out the existing residence whilst you make your plans for the site. Raise and/or extend the existing cottage to embrace and enhance its original timeless character. Or, when you're ready, remove the cottage and create your dream home ... and with it, your dream lifestyle. Capture those cool bay breezes with a two-level contemporary masterpiece complete with oversized alfresco decking. The options are endless - all you have to do is choose!

Whilst being tucked away from the hustle and bustle in a peaceful neighbourhood, this superb property is just a moment's stroll from the vibrant foreshore. Local amenities are all a stone's throw away too:

• 150mtrs to multiple bus stops
• 850mtrs to shops/restaurants/everyday amenities
• 500mtrs-1.5kms to multiple well-regarded primary schools & child care centres
• 2kms to bustling Sandgate "Village" CBD
• 2.8kms to train station (30mins ride to Brisbane City)
• 4kms to prestigious St Patricks Boys College (approx. 8mins drive)

Properties in this locale are tightly held. Numerous other homes in this peaceful street and its surrounds are also currently undergoing significant upgrades, indicating strong value being injected into the area.

Entry-level buying into the increasingly popular 4017 northern bayside district is becoming more and more rare. Serious house-hunters will know that cottages on near-waterfront blocks are highly sought-after and demand far outweighs supply. You'll need to act fast to avoid disappointment.


** Every precaution has been taken to establish accuracy of the above information but does not constitute any representation by the vendor or agent. Prospective purchasers should conduct their own due diligence.

Features

20062480
Property ID
2
Bedrooms
1
Bathrooms
405 sqm approx.
Land Size

Send Enquiry

Your Details
Your Enquiry
  1. Please describe how we can be of assistance to you.

  2.  

    Would you like to join our mail list?

Submit