Sold

Displaying: of 8

Agent Details

Sydney Murphy
Tamara and Mark Wecker

Share

Location & Affordability

Sold for $355,000

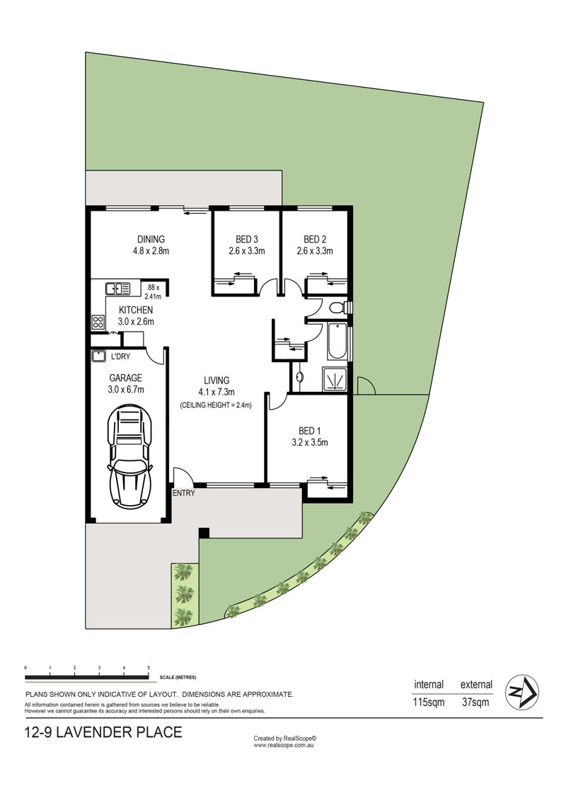
12/9 Lavender Place, Fitzgibbon

3
1
2

Profile

Brilliantly positioned, this neat three bedroom villa is one of 28 in the Jacaranda Gardens complex.
The upside of being super close to transport (Carseldine station is just 250 metres away) is offset by the home being tucked away in a quiet spot within the collection of villas.

Built in 1994 and with an internal size of 120m2, this villa is exceptional buying.
Stepping through the tiled, east facing front entrance you enter a large, carpeted lounge space with air-conditioning.
From this lounge you may enter the kitchen to your left and the dining room beyond. The backyard is accessed by sliding door from this dining space. The single car lock-up garage is a massive 8 metres deep and has a laundry space at the rear of it. Internal garage access from the kitchen is a bonus!

The kitchen is compact but offers a gas cooktop, dishwasher, electric wall oven and plenty of storage. The bench has a breakfast bar style overhang that connects the dining space.

Across the lounge space you have your main bedroom with built in robes and air-conditioning. Bedrooms two and three fan off from a small hallway along with the separate toilet and bathroom. This bathroom has both a bath and a separate shower. This hallway also sports a linen cupboard.

Outside you have a sunny rear yard and a bonus side yard, both grassed and with space for the trampoline!

There is so much to like here, especially the over-sized lounge space and terrific flow of the home. So, why not treat yourself to low maintenance, easy living in a super convenient location.

Features include:

- 3 bedrooms, all with built in wardrobes, master with air-conditioning
- Large bathroom with separate bath & shower
- Generous open plan living space with air-conditioning
- A well appointed kitchen, modern appliances and plenty of cupboard space
- Kitchen & dining space is neatly connected
- A good sized backyard space
- Security screens
- Remote single lock-up garage + additional open air car space
- Walk to train station, major bus stops & minutes to shopping & schools
- 2km to Carseldine Central shopping

Affordable body corporate, immaculately maintained & pet friendly complex

Features

20670379
Property ID
3
Bedrooms
1
Bathrooms
2
Garage
120 sqm approx.
Building Size
Remote Garage

Send Enquiry

Your Details
Your Enquiry
  1. Please describe how we can be of assistance to you.

  2.  

    Would you like to join our mail list?

Submit